Asking Price £445,000

Buckerell Avenue, St Leonards, EX2 (ref: 712882)

Shortlist

Key Features

  • DETACHED BUNGALOW
  • TWO DOUBLE BEDROOMS
  • GENEROUS GARDENS
  • EXCELLENT LOCATION
  • POTENTIAL FOR MODERNISATION
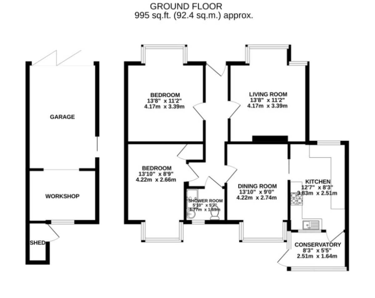
SUMMARY A spacious two-bedroom detached bungalow situated on the popular Buckerell Avenue in Exeter, offering excellent potential for modernisation.

The property benefits from generous gardens, ideal for outdoor enjoyment, along with useful outbuildings suitable for storage, including space for lawn equipment. Further features include a garage with workshop.

Internally, the bungalow offers a spacious shower room, a well-proportioned kitchen, and a separate dining room, providing flexible and comfortable living accommodation.

Overall, this property presents a fantastic opportunity for buyers looking to update and create a home tailored to their own tastes in a sought-after location.

The exterior includes a sizeable brick-constructed garage with adjoining workshop space, fitted with electricity and lighting, complemented by classic wooden folding doors and an additional side entry. Further structures within the grounds comprise a potting shed and greenhouses, providing excellent scope for those with an interest in horticulture or a requirement for practical work areas.

Tenure: Freehold
Council Tax Band: D
EPC Rating: To follow


SITTING ROOM 13' 8" x 11' 3" (4.17m x 3.43m) uPVC double glazed bay window overlooking the front garden, feature gas fire place and wall mounted radiator.

MASTER BEDROOM 13' 9" x 11' 2" (4.19m x 3.4m) uPVC double glazed bay window overlooking the front garden, built in wardrobes, wall mounted radiator.

SECOND BEDROOM 13' 10" x 8' 9" (4.22m x 2.67m) uPVC double glazed bay window over looking the rear garden with wall mounted radiator.

DINING ROOM 13' 10" x 3' 0" (4.22m x 0.91m) uPVC double glazed bay window, feature gas fire place with two storage cupboards either side of chimney breast.

KITCHEN 12' 7" x 8' 4" (3.84m x 2.54m) uPVC windows overlooking both the front and rear gardens, with a wall-mounted radiator. A lean-to leads off the kitchen, providing space for a cooker, fridge freezer, and tumble dryer, along with plumbing for a washing machine.

BATHROOM 05' 10" x 5' 07" (1.78m x 1.7m) Shower room with shower cubical, WC and sink, wall mounted heated towel rail and uPVC double glazed window with obscure glass.

LETTING INFORMATION LETTING/RENTAL INFORMATION Rosewood Property Lettings Department have put an estimated rental value on this property in the region of £1100. If you would like further information regarding this or any aspect of letting a property, please contact our Lettings Department.

SERVICES SERVICES Electric: Key meter
Heating supply: Mains gas
Sewerage: Mains
Water Supply: Mains
Mobile signal: Several networks showing as available including EE, Vodaphone, 3 and 02
Broadband: Standard, Superfast and Ultrafast

Stamp duty due

Based on a sale price of £445,000 the total amount of stamp duty payable will be:

*

Last updated: The calculator has been updated to reflect changes in stamp duty following the Autumn Budget on 30th October 2024 for April 1st 2025 onwards.

* This value is based on the standard rate and not applicable to first-time buyers or buy-to-let / second home buyers.

Property Images

2 bed detached bungalow for sale in Buckerell Avenue, St Leonards, EX2 0

2 bed detached bungalow for sale in Buckerell Avenue, St Leonards, EX2 1

2 bed detached bungalow for sale in Buckerell Avenue, St Leonards, EX2 2

2 bed detached bungalow for sale in Buckerell Avenue, St Leonards, EX2 3

2 bed detached bungalow for sale in Buckerell Avenue, St Leonards, EX2 4

2 bed detached bungalow for sale in Buckerell Avenue, St Leonards, EX2 5

2 bed detached bungalow for sale in Buckerell Avenue, St Leonards, EX2 6

2 bed detached bungalow for sale in Buckerell Avenue, St Leonards, EX2 7

2 bed detached bungalow for sale in Buckerell Avenue, St Leonards, EX2 8

2 bed detached bungalow for sale in Buckerell Avenue, St Leonards, EX2 9

2 bed detached bungalow for sale in Buckerell Avenue, St Leonards, EX2 10

2 bed detached bungalow for sale in Buckerell Avenue, St Leonards, EX2 11

2 bed detached bungalow for sale in Buckerell Avenue, St Leonards, EX2 12

2 bed detached bungalow for sale in Buckerell Avenue, St Leonards, EX2 13

2 bed detached bungalow for sale in Buckerell Avenue, St Leonards, EX2 14

2 bed detached bungalow for sale in Buckerell Avenue, St Leonards, EX2 15

2 bed detached bungalow for sale in Buckerell Avenue, St Leonards, EX2 16

2 bed detached bungalow for sale in Buckerell Avenue, St Leonards, EX2 17

Further Details

  • New Listing: Launched in the last 10 days
  • Status: Available
  • Tenure: Freehold
  • Reference: 712882

Location

Similar priced properties

5 bed end of terrace house for sale in Monks Road, Exeter, EX4
Sold STC
Asking Price £425,000
5 2
Monks Road, Exeter, EX4
SUMMARY Discover this spacious and unique 4 bedroom property with ample...
4 bed apartment for sale in Four 1-bedroom Self Contained Flats
£485,000
4 4
Four 1-bedroom Self Contained Flats
SUMMARY FOUR 1 BEDROOM SELF CONTAINED APARTMENTS FOR SALE - A fantastic...