Offers in Excess of £230,000

Quartz Row, Exeter, EX4 (ref: 700325)

Shortlist

Key Features

  • SEM-DETAHCED COACH HOUSE
  • TWO BEDROOMS - MASTER WITH EN-SUITE
  • GARAGE
  • SOUGHT AFTER LOCATION
  • GREAT FIRST TIME BUY OR INVESTMNET PROPERTY
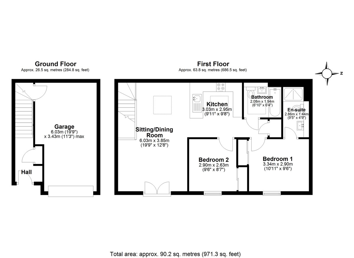
SUMMARY Two-Bedroom Semi-Detached Coach House (Built 2021)

Immaculately presented throughout, this modern two-bedroom semi-detached coach house benefits from a light and airy open plan living room, dining room with a modern fitted kitchen. There are two spacious and well-presented double bedrooms one with an ensuite along with a contemporary family bathroom. There is also two good sized storage cupboards one located downstairs in the entrance hallway and one upstairs in the main hallway.

The property also benefits from a garage with water and electricity as well as extra under stairs storage accessed from the garage. There is also the added bonus of allocated parking for one car outside the property.

Ideally located in the popular area of Pinhoe, the property offers excellent access to the city centre, Pinhoe Primary School, local shops and supermarkets, as well as convenient A30 and M5 commuter links. A bus stop is situated at the front of the development, and Pinhoe Train Station is within walking distance.

Property Tenure - Freehold
Council Tax - B
EPC - C

Floorplans to follow.

LOUNGE/DINER 12' 7" x 19' 10" (3.86m x 6.07m) Spacious and light open plan lounge and dining room. uPVC doubled glazed double doors with Juliet balcony looking out to the front of the property, two skylights flood the space with natural light. Two radiators and Karndean LVT flooring laid throughout.

KITCHEN 10' 0" x 10' 2" (3.05m x 3.10m) Modern fitted kitchen with matching base and eye level cupboards, integrated oven, gas hob and extractor fan. Space for large free standing fridge, freezer, space and plumbing for washing machine and space for an extra appliance. Karndean LVT flooring continues from the living/dining room into this space.

BEDROOM 1 9' 6" x 12' 11" (2.90m x 3.96m) uPVC double glazed and double height window, fitted wardrobe and radiator.

ENSUITE 4' 9" x 9' 3" (1.45m x 2.82m) Large enclosed shower cubical with mains powered shower, WC, toilet and mains powered heated towel rail and laid with Karndean LVT flooring.

BEDROOM 2 9' 6" x 10' 7" (2.90m x 3.25m) uPVC double glazed and double height window, fitted wardrobe and radiator.

BATHROOM 6' 3" x 6' 11" (1.93m x 2.11m) White suite including a main powdered shower over the bath, WC, sink and mains powdered heated towel rail. A sky light adds natural light to the space and flooring is laid with Karndean LVT.

RENTAL/LETTINGS INFORMATION Rosewood Property Lettings Department have put an estimated rental value on this property in the region of £1100. If you would like further information regarding this or any aspect of letting a property, please contact our Lettings Department.

SERVICES Electricity supply: Mains electricity
Heating supply: Mains gas
Sewerage: Mains
Water Supply: Mains
Mobile signal: Several networks showing as available including EE, Vodaphone, 3 and 02
Broadband: Standard, Superfast and Ultrafast

Stamp duty due

Based on a sale price of £230,000 the total amount of stamp duty payable will be:

*

Last updated: The calculator has been updated to reflect changes in stamp duty following the Autumn Budget on 30th October 2024 for April 1st 2025 onwards.

* This value is based on the standard rate and not applicable to first-time buyers or buy-to-let / second home buyers.

Property Images

2 bed end of terrace house for sale in Quartz Row, Exeter, EX4 0

2 bed end of terrace house for sale in Quartz Row, Exeter, EX4 1

2 bed end of terrace house for sale in Quartz Row, Exeter, EX4 2

2 bed end of terrace house for sale in Quartz Row, Exeter, EX4 3

2 bed end of terrace house for sale in Quartz Row, Exeter, EX4 4

2 bed end of terrace house for sale in Quartz Row, Exeter, EX4 5

2 bed end of terrace house for sale in Quartz Row, Exeter, EX4 6

2 bed end of terrace house for sale in Quartz Row, Exeter, EX4 7

2 bed end of terrace house for sale in Quartz Row, Exeter, EX4 8

2 bed end of terrace house for sale in Quartz Row, Exeter, EX4 9

2 bed end of terrace house for sale in Quartz Row, Exeter, EX4 10

2 bed end of terrace house for sale in Quartz Row, Exeter, EX4 11

2 bed end of terrace house for sale in Quartz Row, Exeter, EX4 12

2 bed end of terrace house for sale in Quartz Row, Exeter, EX4 13

Further Details

  • New Listing: Launched in the last 10 days
  • Status: Available
  • Tenure: Freehold
  • Reference: 700325

Location

Similar priced properties

1 bed apartment for sale in Trinity Apartments, Roman Walk
Sold STC
Offers over £200,000
1 1
Trinity Apartments, Roman Walk
SUPERBLY PRESENTED 1 bedroom second floor apartment in this prestigious
2 bed terraced house for sale in Tower Gardens, Crediton
Sold STC
Offers in Excess of £225,000
2 1
Tower Gardens, Crediton
SUMMARY LOVELY SPACIOUS AND LIGHT 2 Bedroom Mid-Terrace House in Crediton with...
3 bed maisonette for sale in Blackboy Road, Exeter, EX4
Asking Price £255,000
3 2
Blackboy Road, Exeter, EX4
SUMMARY Step inside this unique and charming three-bedroom property, previously...