Asking Price £255,000

3 bed maisonette for sale in Blackboy Road, Exeter, EX4 (ref: 687673)

Shortlist

Key Features

  • FIRST TIME HOME or INVESTMENT
  • PRIME LOCATION
  • GOOD CONDITION THROUGHOUT
  • UNQUIE PROPERTY
  • CLOSE TO LOCAL AMWNITIES
  • FULLY LET 2025/2026 - £24,480
SUMMARY Step inside this unique and charming three-bedroom property, previously renovated for student accommodation and ideally positioned in the ever-popular area of St James - a prime location for both the university and the city centre.
Beautifully presented and in excellent decorative order throughout, this home is perfectly suited to investors as well as first-time buyers seeking a well-located and appealing property.

Key Features:

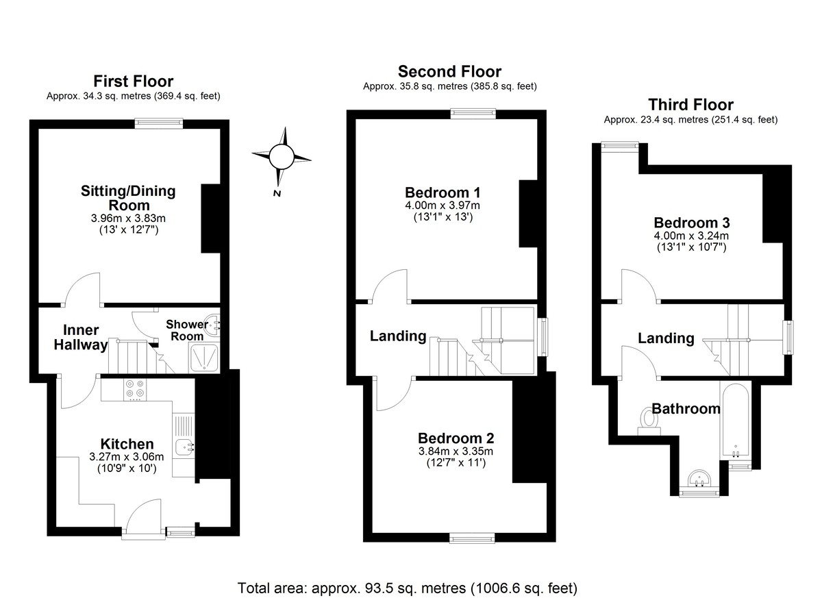
The property is a maisonette arranged over 3 floors. Includes a first floor, second and third floor provides ample space for separate living and studying.

Location: Situated in a desirable area close to the city centre, local amenities, public transport and the university.

Living Space: Finished to a high standard, comfortable and spacious, perfect for socialising.

Bedrooms: 3 good sized rooms, each room has been decorated and furnished to a high standard to provide a comfortable student study and sleeping environment.

Outdoor area: A tidy courtyard area, with a covered area perfect for hanging out washing and storing bikes.

Property Tenure - Share of Freehold
Council Tax - B
EPC - D

KITCHEN 9' 7" x 10' 7" (2.92m x 3.23m) Outdoor stairs lead to uPVC front door to kitchen. uPVC window looking over courtyard. Base units and floor units with vinyl floor and tiled splashback. Breakfast bar and space underneath for two appliances. Storage cupboard with combi boiler and space for another appliance. Integrated oven and hob and extractor fan. Sink with mixer tap and drainage. Radiator.

LOUNGE 12' 8" x 12' 8" (3.86m x 3.86m) Large comfortable lounge area. uPVC window looking to back of property. Radiator and TV point.

SHOWER ROOM 5' 0" x 4' 0" (1.52m x 1.22m) Shower cubical with main powered shower. Sink with mixer tap. Space for an appliance.

BEDROOM 1 12' 7" x 12' 7" (3.84m x 3.84m) First floor bedroom with uPVC window looking out to the back of the property. Radiator and fire place.

BEDROOM 2 9' 11" x 9' 6" (3.02m x 2.9m) First floor bedroom, uPVC window looking to the back of the property. Radiator and fire surround.

BEDROOM 3 11' 0" x 8' 8" (3.35m x 2.64m) Attic bedroom on the 3rd floor. uPVC window looking to the back of the property.

BATHROOM 7' 4" x 9' 6" (2.24m x 2.9m) Opaque uPVC window looking out to the front of the property. Bath with mains mixer tap and shower head. Sink and WC. Radiator, large wall mounted mirror and storage eves. Vinyl flooring.

LETTING/RENTAL INFORMATION Student Rental - for £24,480 2025/26 academic year, ensuring a steady rental yield.

Residential Lettings Potential - Rosewood Property Lettings Department have put an estimated rental value on this property in the region of £1200 - £1300. If you would like further information regarding this or any aspect of letting a property, please contact our Lettings Department.


SERVICES Electricity supply: Mains electricity
Heating supply: Mains gas
Sewerage: Mains
Water Supply: Mains
Mobile signal: Several networks showing as available including EE, Vodaphone, 3 and 02
Broadband: Standard, Superfast and Ultrafast

Stamp duty due

Based on a sale price of £255,000 the total amount of stamp duty payable will be:

*

Last updated: The calculator has been updated to reflect changes in stamp duty following the Autumn Budget on 30th October 2024 for April 1st 2025 onwards.

* This value is based on the standard rate and not applicable to first-time buyers or buy-to-let / second home buyers.

Property Images

3 bed maisonette for sale in Blackboy Road, Exeter, EX4 0

3 bed maisonette for sale in Blackboy Road, Exeter, EX4 1

3 bed maisonette for sale in Blackboy Road, Exeter, EX4 2

3 bed maisonette for sale in Blackboy Road, Exeter, EX4 3

3 bed maisonette for sale in Blackboy Road, Exeter, EX4 4

3 bed maisonette for sale in Blackboy Road, Exeter, EX4 5

3 bed maisonette for sale in Blackboy Road, Exeter, EX4 6

3 bed maisonette for sale in Blackboy Road, Exeter, EX4 7

3 bed maisonette for sale in Blackboy Road, Exeter, EX4 8

3 bed maisonette for sale in Blackboy Road, Exeter, EX4 9

3 bed maisonette for sale in Blackboy Road, Exeter, EX4 10

3 bed maisonette for sale in Blackboy Road, Exeter, EX4 11

3 bed maisonette for sale in Blackboy Road, Exeter, EX4 12

Further Details

  • Status: Available
  • Tenure: Freehold
  • Reference: 687673

Location

Similar priced properties

2 bed apartment for sale in Union Road, Exeter
Asking Price £208,000
2 bed apartment for sale in Union Road, Exeter
2 1 2

SUMMARY A fantastic Ground Floor Maisonette with a lot to offer having two...
2 bed terraced house for sale in Tower Gardens, Crediton
Sold STC
Offers in Excess of £225,000
2 bed terraced house for sale in Tower Gardens, Crediton
2 1 1

SUMMARY LOVELY SPACIOUS AND LIGHT 2 Bedroom Mid-Terrace House in Crediton with...
3 bed terraced house for sale in East John Walk, Newtown, EX1
NEW
£299,000
3 bed terraced house for sale in East John Walk, Newtown, EX1
3 1 1

SUMMARY Nestled in the highly sought-after area of Newtown, this charming...